М-09/40 Блискавкоприймач з кріпленням до труб
Опис та призначення
- Призначений для захисту від ударів блискавки димових труб, вентканалів та іншого обладнання і конструкцій, які розміщені на дахах будівель.
- Встановлюється на трубах та конструкціях і кріпиться з допомогою 2-х хомутів до труб Ø100..400 мм.
- Відповідає вимогам ДСТУ EN 62305-3:2012 та ІЕС 50164 щодо блискавкоприймачів.
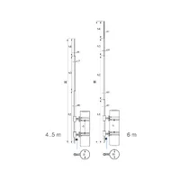
Комплектація та матеріали блискавкоприймача:
- NI щогла Ø42 мм довжиною h1 з втулкою 32/М16 – 1 шт;
- NI щогла Ø32 мм довжиною h2 – 1 шт;
- AL шпиль Ø16 мм довжиною h3 – 1 шт;
- AL шпиль Ø10 мм довжиною h4 – 1 шт;
- ST З'єднувач щогли з дротом Ø8..10 мм М-030 – 1 шт;
- NI тримач щогли до труби подвійний – 2 шт.
| артикул | М-09/40 |
|---|---|
| код | 1509 406 |
| висота H | 4000 mm |
| висота h1, Ø42 | - |
| висота h2, Ø32 | 3000 mm |
| висота h3, Ø16 | 1000 mm |
| висота h4, Ø10 | - |
| діаметр шпиля | 30/16 mm |
| тримач | [2х] М-075 |
| відстань між кріпленнями G | 400..600 mm |
| діаметр труби D | 100х400 mm |
| довжина хомута L | 1250 mm |
| вага | 6,25 kg |


